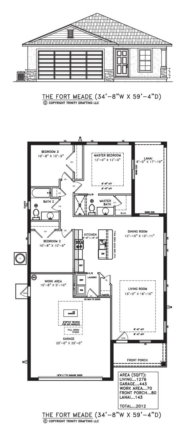
The Fort Meade
PREVIOUS PLAN
NEXT PLAN
PRICE FOR THIS PLAN
PDF OF THIS PLAN
Jody Willis
Trinity Drafting
813.482.2463
mail@trinitydrafting.com